А. А. Окороков, генеральный директор АО «Алмазы Анабара»; С. А. Прокопьев, генеральный директор ООО НПК «Спирит», к. т. н.; А. Л. Земнухов, главный геолог АО «Алмазы Анабара»; О. Л. Алексеева, первый заместитель ГД ООО НПК «Спирит»; А. А. Хамнуев, руководитель группы обогащения руд ООО НПК «Спирит»
Россыпное месторождение алмазов протянулось от устья р. Большая Куонамка вверх по течению на 120 километров. Объект недропользования расположен за полярным кругом, в 40 км на юго-восток находится ближайший населённый пункт — посёлок Джелинда.
Алмазы в русловом аллювии р. Б. Куонамка впервые были найдены в 1959 г. В результате проходки горных выработок повышенные концентрации алмазов в русловом и косовом аллювии зафиксированы геологами Амакинской экспедиции в 1963 г. В эти же годы найдены сопутствующие алмазам мелкие знаки золота и зафиксировано его повышенное содержание: от 10–20 мг/м3 до 200–300 мг/м3.
В аллювии р. Б. Куонамка выход минералов тяжёлой фракции ураганный. В классе -1 мм в их составе преобладают альмандин (до 75 %) и ильменит (до 20 %), а на долю остальных минералов (магнетита, лимонита, рутила и других) приходится около 5 %. В классе +1 мм преобладает лимонит, реже встречается альмандин, пироп, пикроильменит.
Шлиховое золото в отложениях представлено преимущественно тонкими, мелкими фракциями и сосредоточено в классе -1 мм, приурочено к промышленному пласту алмазоносных россыпей с крайне неравномерным распределением. Металлоносные пески не образуют самостоятельных залежей. Согласно «Методическим рекомендациям по комплексному изучению месторождений и подсчёту запасов попутных полезных ископаемых и компонентов» (Москва, 2007), золото месторождения относится ко второй группе попутных компонентов, которые при обогащении могут быть выделены в самостоятельные концентраты в количествах, допускающих их последующее извлечение на экономически рациональной основе.

Для большей части песков месторождения доминирующим является класс -0,5+0,125 мм, на долю которого в среднем приходится от 68,8 % до 89,0 %. Таким образом, попутное золото месторождений характеризуется как мелкое и тонкое. Во всех классах крупности резко доминируют хорошо окатанные пластинчатые, тонкопластинчатые и чешуйчатые выделения. Цвет золота ярко-жёлтый, для поверхности большинства золотин характерна мелкая шагрень, пробность высокая (900–985 %).
Извлечение попутного золота начато в 2017 г. после принятия постановления Правительства РФ «О критериях отнесения полезных ископаемых к попутным полезным ископаемым…» № 963 от 12.08.2017.
До 2021 года шлиховое золото на объектах прииска Маят извлекалось при помощи шлюзов мелкого наполнения (ШМН) из класса крупности менее 1 мм отвальных хвостов сезонной фабрики по обогащению алмазов. Принимая во внимание ураганные выходы тяжёлой фракции и необходимость повышения эффективности извлечения золота мельче 0,25 мм, от АО «Алмазы Анабара» в адрес НПК «Спирит» поступила заявка на проведение опытно-промышленных испытаний технологии винтовой сепарации для извлечения шлихового золота из текущих хвостов ШМН.
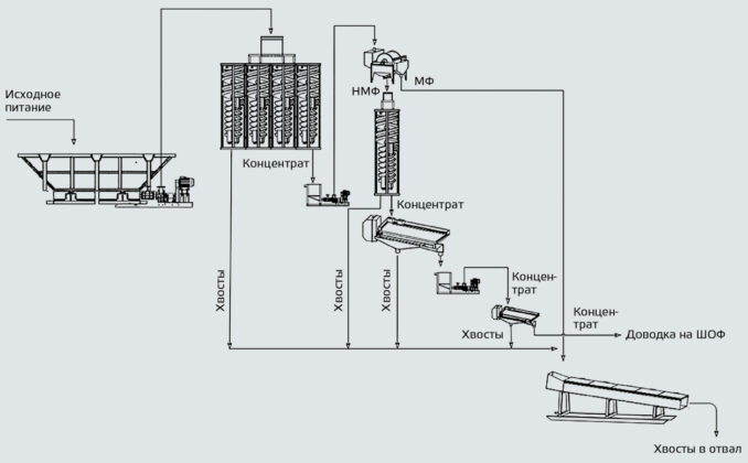
В рамках проведения испытаний была задействована технологическая схема, представленная на рис. 1.

Винтовые сепараторы в обогащении: описание работы опытной установки
Пульпа, отобранная из пробоотборников, самотёком поступает в зумпф насоса. Далее она транспортируется на винтовые сепараторы. Хвосты, полученные в результате винтовой сепарации, направляются в отвал, тогда как концентрат самотёком поступает на концентрационный стол СКО-7,5 для дальнейшей концентрации. Хвосты концентрационного стола СКО-7,5 также являются отвальными. Концентрат, полученный со стола СКО-7,5, подвергается дополнительной доводке на концентрационном столе СКО-2 с целью повышения качества конечного продукта.

В среднем в сутки установка действовала по 12 часов, за каждую такую рабочую смену перерабатывалось порядка 12 м3 хвостов ШМН в твёрдом исходном сырье. Средняя часовая производительность установки составила 1,04 м3/ч.
В ходе опытно-промышленных испытаний была изучена эффективность применения технологии винтовой сепарации для получения гравитационного концентрата. Результаты испытаний продемонстрировали перспективность внедрения технологии:
— при применении винтовой сепарации удаётся получить черновой гравитационный концентрат с содержанием золота 4,34 г/м³ и извлечением 68,46 % от текущих хвостов ШМН;
— последующая доводка на концентрационном столе СКО-2 позволяет получать концентрат с содержанием золота 353,3 кг/м³ и сквозным извлечением 51,58 % от хвостов ШМН.
Анализ полученных данных показал, что благодаря высоким показателям извлечения золота из отвальных хвостов технология винтовой сепарации имеет значительный потенциал по улучшению технологических показателей работы узла извлечения попутного золота на объектах недропользователя.
Совместная работа ООО НПК «Спирит» и АО «Алмазы Анабара» по внедрению обогатительного комплекса ОКВ-100
Учитывая положительный результат испытаний и потенциал технологии для повышения эффективности производства, АО «Алмазы Анабара» приняло решение о внедрении промышленной установки винтовой сепарации. В 2023 году проведена совместная работа между ООО НПК «Спирит» и АО «Алмазы Анабара» по изготовлению, доставке, монтажу и запуску в эксплуатацию обогатительного комплекса ОКВ-100 производительностью 100 м3/ч с целью извлечения золота из хвостов переработки алмазосодержащих песков.


В период промывочного сезона 2023 года фабрика на ОКВ-100 переработала значительный объём хвостов — 72,45 тыс. В результате было отправлено на доводку 9,7 м³ концентрата и извлечено 6 441 г золота. Средний прирост извлечения золота составил 25 %, что свидетельствует о достаточно высоком уровне доизвлечения драгоценного металла.
По окончании сезона отобранные пробы поузлового опробования были направлены в лабораторию НПК «Спирит» для изучения вещественного состава, определения обогатимости альтернативными методами доводки и анализа потерь ценного компонента.
Комплексный анализ проб и особенностей вещественного состава тяжёлой фракции россыпи выявил необходимость в применении мокрой магнитной сепарации и увеличении фронта концентрации на столах.

С учётом опыта работы сезонов 2023–2024 годов, внесения изменений в конструктив оборудования для приёма пульпы, особенностей поведения сырья на обогатительной линии в 2025 году на предприятии были внедрены дополнительные две установки ОКВУ, оснащённые магнитными сепараторами и дополнительными концентрационными столами. Это решение было направлено на масштабирование успешного опыта и увеличение объёмов производства продукции.
Стоит отметить, что в таблице 2 отражены количественные показатели только по шлиховому золоту, которое извлечено на шлихообогатительном участке в процессе доводки и взвешивания, без учёта того золота, которое остаётся в хвостах доводки в виде микронного золота и золота в сростках.

Однако даже эти данные говорят о том, что в среднем по всем участкам, где установлены винтовые сепараторы, имеется прирост по извлечению золота на уровне 16 %, что является положительным результатом работы оборудования.
Обращает на себя внимание тот факт, что более 69 % золота, извлекаемого из текущих хвостов ШМН, имеют размерность менее 0,25 мм, что свидетельствует о высокой эффективности работы винтовых сепараторов по мелкому и тонкому золоту.


АО «Алмазы Анабара» в сезоне 2026 года планирует продолжать эксплуатацию всех комплексов винтовой сепарации на своих объектах.


ООО НПК «Спирит»
г. Иркутск, ул. Лермонтова, 128/2, тел. +7 (914) 931-83-17
www.spirit-irk.ru
pes@spirit-irk.ru,
https://t.me/spirit_irkutsk

Реклама компании ООО НПК «Спирит»
ИНН: 3810329663
Erid: 2SDnjeDAb9j
